House on a Victorian Square

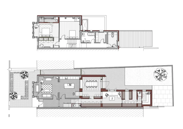
This project consisted of the renovation, alteration, extension and thermal upgrading to an existing residence on a South Dublin Victorian terrace located of a public green.

25-03 Eaton Square-ALWA_Simon Menges & Nino Tugushi_02.jpg
25-03 Eaton Square-ALWA_Simon Menges & Nino Tugushi_10.jpg

Our approach to this dwelling sought to carefully navigate the existing property with upgrades to its internal finishes with a refined palette of materials complimenting the period features whilst creating a contemporary extension that introduced a calming feeling of air & light to provide the backdrop for a convivial setting for a new dining space amongst other new rooms.

25-03 Eaton Square-ALWA_Simon Menges & Nino Tugushi_13.jpg
25-03 Eaton Square-ALWA_Simon Menges & Nino Tugushi_15.jpg

The architecture of the local context and the existing property itself, provided the inspiration for creating a new extension of well crafted brick and timber joinery detailing. Subtle cues were taken from recesses and reveals to create depth within the new elevation and expose the volume of the brick. A new patio area within the rear garden allows the family to enjoy the rich character of the extension. The hand made grey Belgian bricks were specifically chosen to complement the tones found predominately along the neighbouring rear terrace elevations of the square which typically comprise grey cement render & dry stone boundary walls.

25-03 Eaton Square-ALWA_Simon Menges & Nino Tugushi_19.jpg
25-03 Eaton Square-ALWA_Simon Menges & Nino Tugushi_24.jpg

Whilst conscious of creating further depth to the plan on the ground floor, the integration of light wells and clerestories complimented by whitewashed internal walls of brick and plaster, and a polished powerfloated concrete floor, allowed light to wash down within the spaces below of both existing and new, at the deepest point in the plan, accentuating the detailing and enriching the character of the rooms.

House on a Victorian Square

Working with the existing ground levels of the site, the new extension sits 600mm below the victorian ground floor, by utilising this drop down and working with the existing ceiling heights to provide clear datums, the dining room enjoys a playful display of volumes forming an ante-space as you drop down to the room, bound by carefully detailed cabinetry before the ceiling rises up to align with the heights of the internal victorian ceiling in the kitchen and living room.

25-03 Eaton Square-ALWA_Simon Menges & Nino Tugushi_31.jpg
25-03 Eaton Square-ALWA_Simon Menges & Nino Tugushi_34.jpg
25-03 Eaton Square-ALWA_Simon Menges & Nino Tugushi_38.jpg
25-03 Eaton Square-ALWA_Simon Menges & Nino Tugushi_Preview_260325.tiff
P_J - Eaton-10.jpg
P_J - Eaton-14.jpg
P_J - Eaton-9.jpg

As a result of working within the restrictions of the existing property structure, and an intent to retain as much of the garden as possible for the family, whilst providing a new dining space to congregate in, and a reconfiguration of the rear return at ground floor, the house is experienced through a generous enfilade of spaces connected by a consistency of light, materials and quality of detailing, whist privacy is maintained on the upper floors.

House on a Victorian Square
House on a Victorian Square
Type

House

Location

South Dublin

Status

Completed 2018

Photo credit

Ben McDonald